建筑型材
Building profiles
Building profiles

ZKPM1045- Very narrow induction offset axis axis rotary flat door
POST TIME:2022-06-24
Zktm45-4516 Concealed aluminum frame sliding door (Ghost door)
POST TIME:2022-06-24
Zktm120-180-4520 extremely narrow triple linkage sliding door
POST TIME:2022-06-24
Zkpm16-4516 Extremely narrow envelope frame flat door
POST TIME:2022-06-24
Zkdm1045-4516 extremely narrow hanging rail linkage sliding door
POST TIME:2022-06-24
Zkdm1045-4516 extremely narrow linkage sliding door
POST TIME:2022-06-24
YF24GR70 Broken bridge casement window
POST TIME:2022-06-24
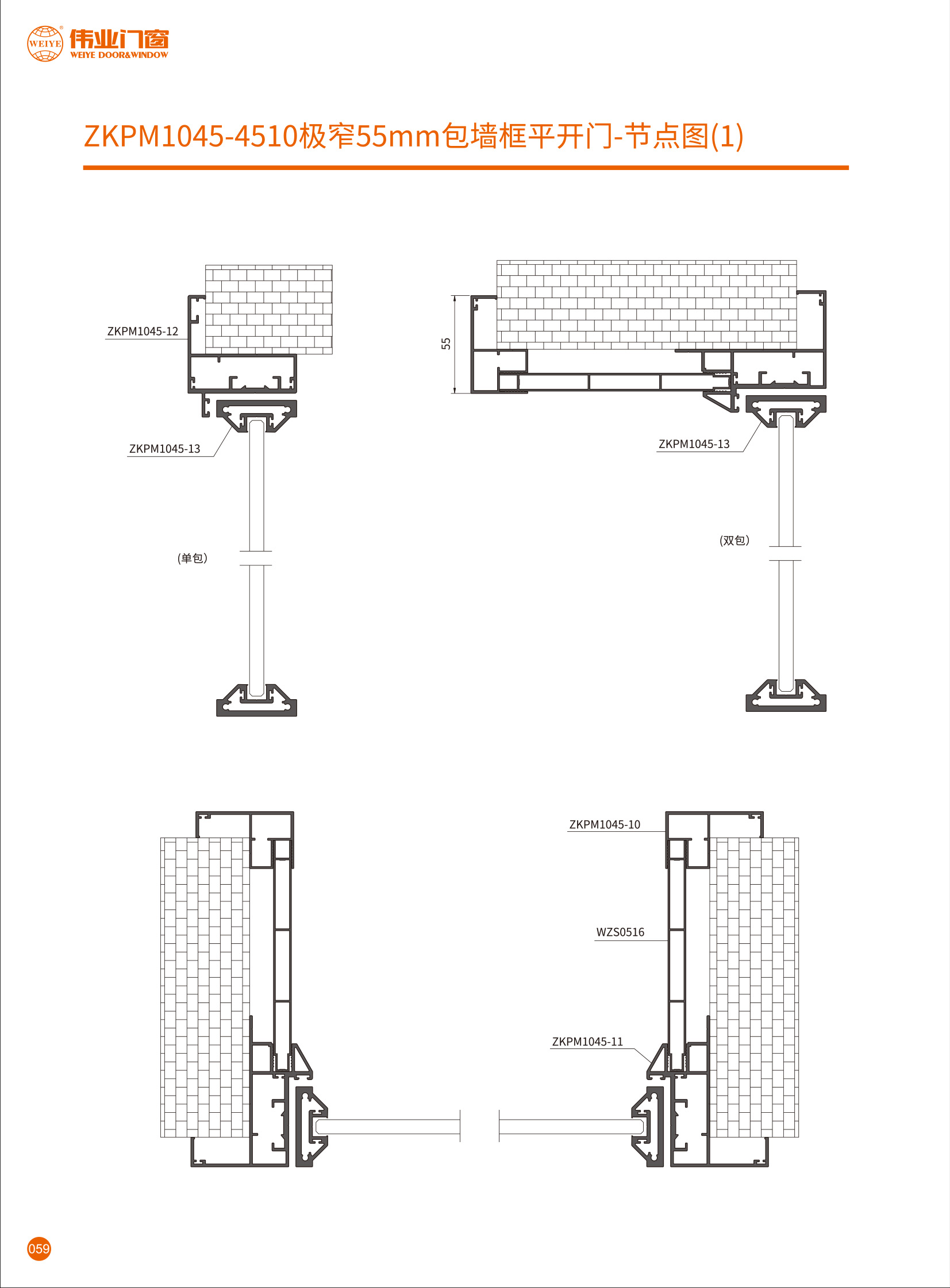
Zkpm1045-4510 very narrow 55mm wall frame flat door
POST TIME:2022-06-24



Scan QR code