建筑型材
Building profiles
Building profiles

Zktm120-180-4560 medium narrow three linkage sliding door
POST TIME:2022-06-24
Wy-k110ws Insulated window screen
POST TIME:2022-06-24
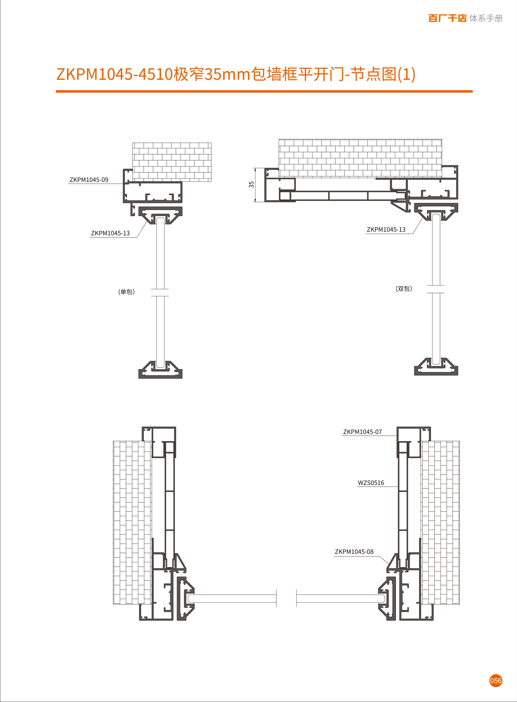
Zkpm1045-4510 very narrow 35mm wall frame flat door
POST TIME:2022-06-24
Zktm120-180-4560 medium narrow sliding door
POST TIME:2022-06-24
Wy-k135ws Insulated window screen integrated casement window
POST TIME:2022-06-24
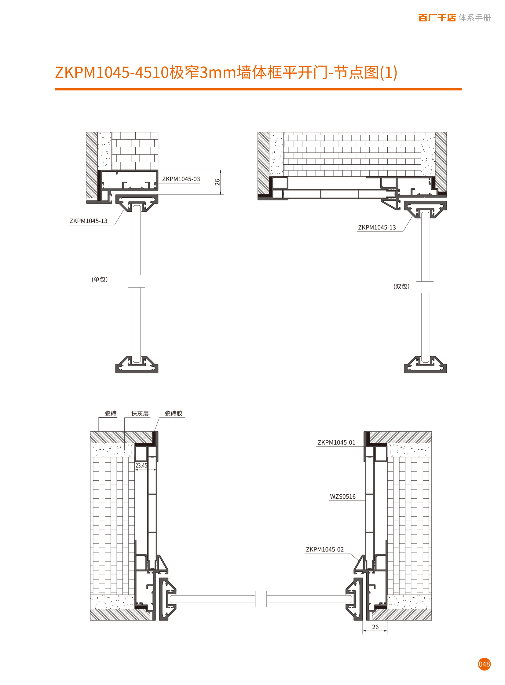
Zkpm1045-4510 extremely narrow 3mm wall frame flat door
POST TIME:2022-06-24
Wy-yf24gr75 insulated casement window
POST TIME:2022-06-24
Zkdm56-113-170-4516 Extremely narrow hanging rail linkage sliding door
POST TIME:2022-06-24



Scan QR code