集团介绍
—— 建筑型材

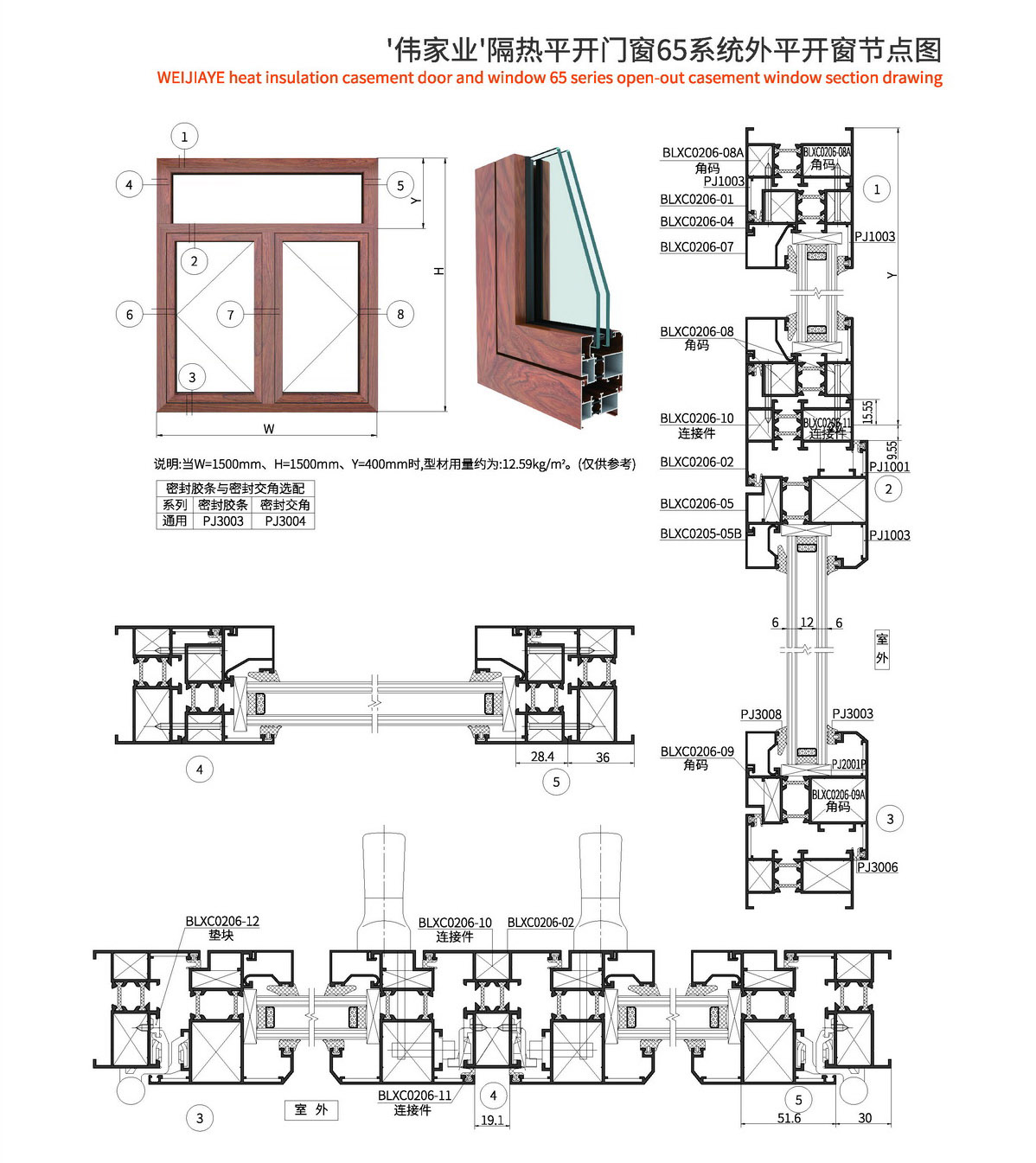
WJY65伟家业65平开窗

产品特性:

1、本系统包括内开内倒窗、外平开窗。
2、本系统按隔热条的宽度分为16系列和20系列,在选用时请注明。
3、本系统的所有门]窗种类在强度、气密、水密、隔声、保温性能上均具有国内外同类产品的顶级性能,是平开窗的高性能产品。
4、铝合金扣条有圆弧、直角、斜边,三种扣条宽度有多种规格。
5、开启扇的密封条和镶嵌玻璃的密封胶条,在65系统的全部窗上通用。
6、本系统在保证铝合金扣条都在室内方向的前提下,均可实现内开转外开、外开转内开的工程需要,为更换玻璃提供了方便,并增加防盗性。
7、本系统因内开窗与外开窗的窗框是通用的,当工程用窗采用内外颜色不一致时,应注意内外颜色。
8、本系统型材无需作任何加工均可安装外置合页、欧标合页和四连杆铰链。
9、安装欧标五金配件时应按附件的长度先将垫块型材在窗框槽内用沉头螺钉固定好,再实施安装。
10、本系统所有专用的金属附件、塑料附件、橡胶附件与铝型材配套供货。

首页 上一页 1 2 下一页 尾页
共11记录 第1页 / 共2页
加载更多
>