集团介绍
—— 建筑型材

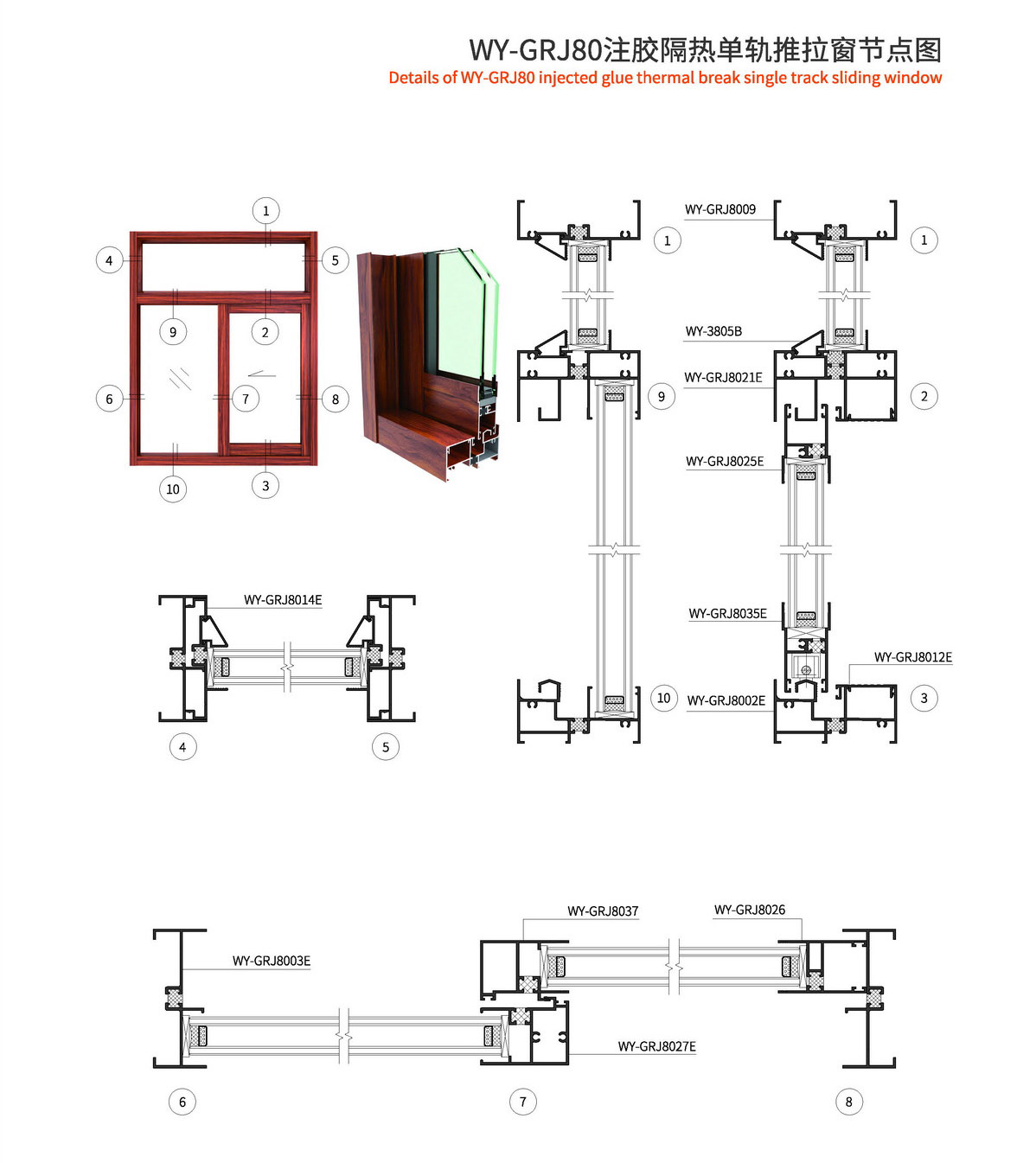
GRJ80注胶隔热推拉窗

产品特性:

主型材:边封宽80mm,型材壁厚1.4mm;采用美式注胶断桥铝型材,强度高,降低传导系数,保温隔热性能优越,抗拉、抗剪强度高。
连接方式:采用螺钉90度插接,加工工艺方便、简单、可靠
玻璃槽口:24mm、25.6mm、27.5mm
开启方式:水平推拉
可做窗型:两扇窗、四扇窗、转角飘窗、门联窗等
适用范围:民用建筑和工程
耗材:1.5mx1.5m标准窗型每平方耗材6.4kg

首页 上一页 1 下一页 尾页
共8记录 第1页 / 共1页
加载更多
>