集团介绍
—— 建筑型材

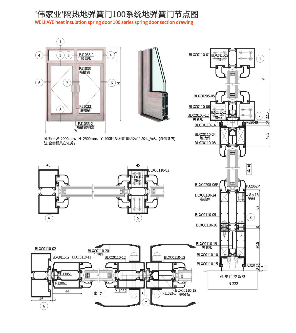
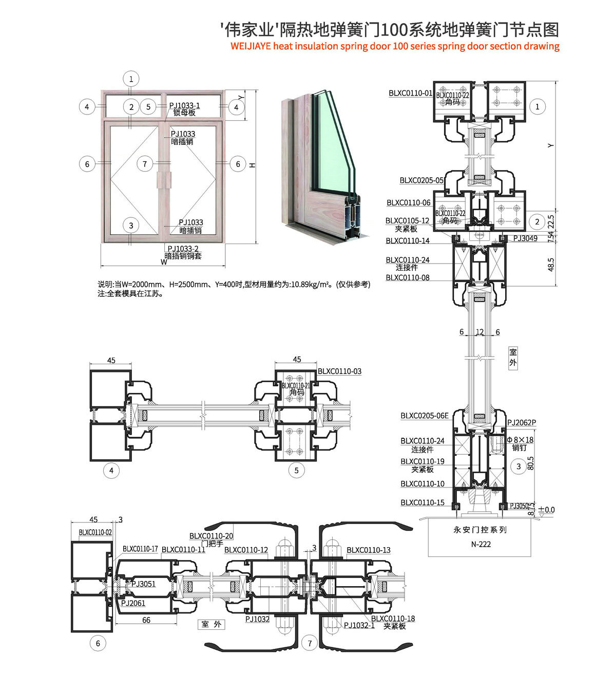
WJY100伟家业100系统保温地弹门

产品特性:

1、本系统所有框料、扇料铝型材均为两支铝型材通过尼龙隔热条复合而成的隔热型材,不但具有良好的保温性,还可按门]面的装饰效果要求将门制作成里外不同的颜色,美观大方。
2、本系统除可满足带上亮、带侧亮的双扇、单扇弹簧门外,制做保温型的隔断和厨窗系列在型材中应属首选。
3、本系统的开启扇周边,均有三元乙丙橡胶制造的密封胶条保持环状密封,具有较高的气密性能和水密性能。
4、本系统配备了圆弧、方角、花边和斜坡多种宽度压线,最大镶嵌玻璃槽口可达到36毫米,所有压线在固定部分和开启扇上通用。
5、本系统门扇配备了中腰型材,可制做上下两块玻璃或上面玻璃下面装饰板的门扇,并可用于门扇下面做下踢脚任意拼接高度。
6、本系统配备的组合式锲形玻璃垫,可将门扇镶嵌玻璃的边缘与嵌入玻璃底间隙挤牢,防止门扇掉角变形造成大尺寸门扇下沉。

首页 上一页 1 下一页 尾页
共7记录 第1页 / 共1页
加载更多
>