集团介绍
—— 建筑型材

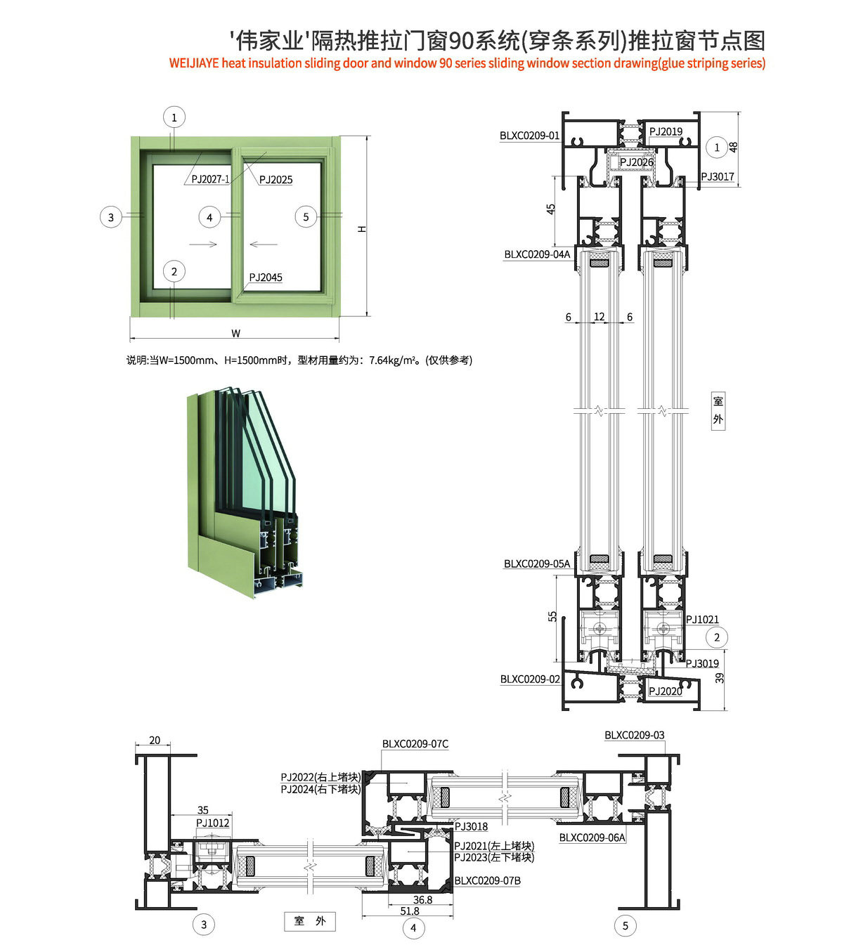
WJY90伟家业90穿条隔热推拉窗

产品特性:

1、本系统现有80注胶推拉窗、90注胶推拉窗、90穿条推拉窗和90穿条推拉门品种并配备了转角和拼接型材,为制做条形窗和带形窗提供了方便。
2、本系统的门窗上、下滑道间都配置了塑料卡槽,阻止了上、下滑道处的冷热交换,提高了门窗的保温性能。
3、本系统两推拉扇搭接处的上部设置了上密封件,下部设置了橡胶的下密封件,可保证门窗的气密性和水密性能,并在窗扇上部中间位置设置了限位块,防止窗扇脱轨并起到了防盗作用。
4、所有门窗的密封条均采用了三元乙丙胶条提高了窗的气密性和水密性,并在本系统的门窗上通用。
5、90系统勾企型材独特的断热设计有效的阻止了热传导,并提高了窗扇搭接部位的密封。
6、80窗扇采用45°角接,90窗扇四角的堵块有镶嵌密封胶条的槽口,都可保证密封条环状密封,可获得较高的密封性能。
7、本系统所有门窗都配备了接口型材,为制做四扇推拉窗提供了方便。
8、本系统所有专用的金属附件、塑料附件、橡胶附件与铝型材配套供货。

首页 上一页 1 下一页 尾页
共8记录 第1页 / 共1页
加载更多
>