集团介绍
—— 建筑型材

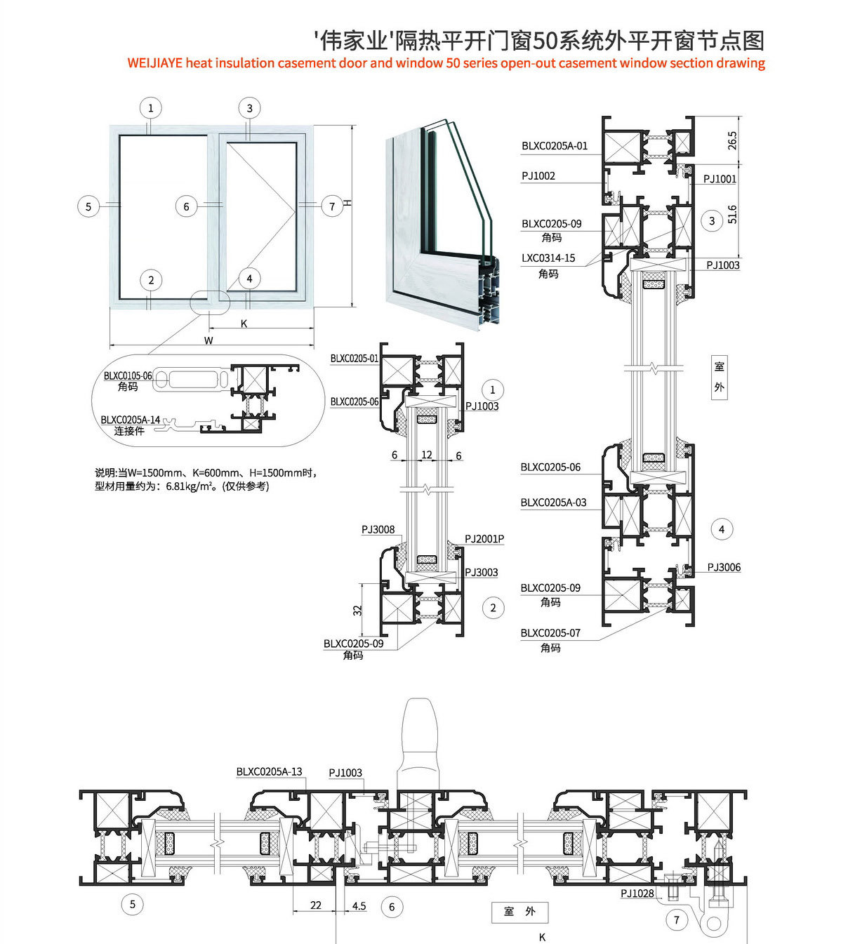
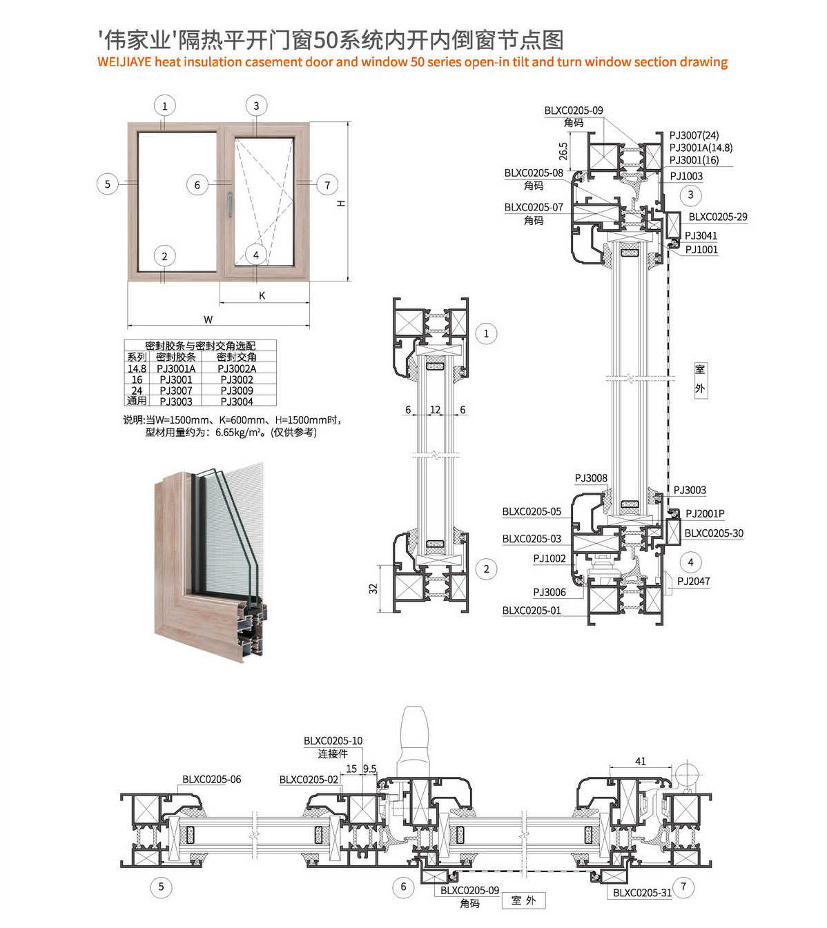
WJY50伟家业50平开门窗

产品特性:

1.本系统包括内开内倒窗、外平开窗、外上悬窗、内平开门、外平开门和各种转角、拼接、加强型材,可达到只要是平开的隔热门窗工程均可用本系统完成。
2.本系统按隔热条的宽度分为14.8系列和16系列,在选用时请注明。
3.本系统的所有门窗种类在强度、气密、水密、隔声、保温性能上均具有国内外同类产品的顶级性能,是平开门窗的高性能产品。
4.铝合金扣条有圆弧、花边直角型,三种扣条宽度有多种规格,并在50系统内的全部门窗开启扇和固定部位通用。
5.开启扇的密封条和镶嵌玻璃的密封胶条,在50系统的全部门窗上通用。
6.平开门扇与框的开启缝里有防盗暗插销,就是将门上的合页拆卸下来没有钥匙也开不了门,有理想的防盗功能。
7.本系统在保证铝合金扣条都在室内方向的前提下,均可实现内开转外开、外开转内开的工程需要,并配备了外平开、外上悬窗上亮窗扣条转向室内侧的转向型材,不用翻转框仍可实现亮窗扣条在室内侧,为更换玻璃提供了方便,并增加防盗性。

首页 上一页 1 2 3 4 5 下一页 尾页
共38记录 第1页 / 共5页
加载更多
>